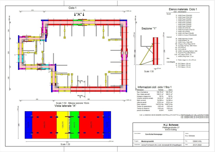
Acrow Formwork (N.I.) Ltd., Acrowwall 80 encofrados

EUR 450,00

sin impuestos más gastos de envío

Rodamiento de encofrado para EuroSchal. Ahora debe añadir un programa de encofrado Muro versión completa o actualización.